01-03-2015
|
#881
|
|
flips McGee
|
Re: House Projects
Dayum Brandon nice! That is a hella nice setup, hopefully pretty nice bang for the buck. Love to see pics of the rack and everything once it's all setup.
__________________
Quote:
Originally Posted by Murlo26
I need to listen to Scheides more often i think :)
|
Quote:
Originally Posted by turbotalon1g
...I realized that I can't keep up my shit talking without anything to back it up.
|
Quote:
|
Originally Posted by JV
S2000: For those of us that know the Miata is the best car on the planet, but also want extra power and to not have to turn in our man cards.
|
|
|
|
01-03-2015
|
#882
|
|
flips McGee
|
Re: House Projects
Quote:
Originally Posted by JET
Just use a regular T-stat to trigger a relay. Problem solved!
|
I thought about it and wasn't confident in my ability to do a setup like that yet. Ended up doing a simple dual-pole line voltage unit. $15 from menards. Putting all that 10-gauge wire in a single gang box was a freaking whore!!!
I have another wiring project I should post some pics of...
__________________
Quote:
Originally Posted by Murlo26
I need to listen to Scheides more often i think :)
|
Quote:
Originally Posted by turbotalon1g
...I realized that I can't keep up my shit talking without anything to back it up.
|
Quote:
|
Originally Posted by JV
S2000: For those of us that know the Miata is the best car on the planet, but also want extra power and to not have to turn in our man cards.
|
|
|
|
01-03-2015
|
#883
|
|
Pewp Champion
Join Date: Nov 2003
Location: Blaine
Drives: Teh Bean
Posts: 12,309
|
Re: House Projects
Quote:
Originally Posted by turbotalon1g
hayzeus mary and joseph.
Gonna be some balling ass shit going on here, can a jigga like me even get into a room like dat?
|
Ha, jiggas like you are the only ones allowed in!
|
|
|
01-03-2015
|
#884
|
|
Pewp Champion
Join Date: Nov 2003
Location: Blaine
Drives: Teh Bean
Posts: 12,309
|
Re: House Projects
Quote:
Originally Posted by Speedfreak
Nice setup. I'd like to check it out when all done.
|
What you doing for the Super Bowl? Goal is to have it done for that, swing by and bring the kid.
|
|
|
01-03-2015
|
#885
|
Join Date: Jul 2004
Location: MN
Drives: four tires
Posts: 1,608
|
Re: House Projects
Quote:
Originally Posted by Halon
What you doing for the Super Bowl? Goal is to have it done for that, swing by and bring the kid.
|
I'll be just up the road in Blaine at Asad's yearly SB party. I'll see if I can make something work to stop by.
__________________
NSX - S480/Built motor
GSX - 571whp/490wtq
Sienna
|
|
|
01-03-2015
|
#886
|
|
Pewp Champion
Join Date: Nov 2003
Location: Blaine
Drives: Teh Bean
Posts: 12,309
|
Re: House Projects
Cool, if not maybe one day we grab lunch up this way and check it out.
PS - I'm sure whatever setup he has would put mine to shame, haha.
|
|
|
01-03-2015
|
#887
|
|
|
Re: House Projects
Pimpin to the max! No ebay this time! haha
Looks good, cant wait to see the finished room.
|
|
|
01-03-2015
|
#888
|
Join Date: Mar 2005
Location: Blaine, MN
Drives: '91 Automagic
Posts: 13,908
|
Re: House Projects
Quote:
Originally Posted by Halon
Ha, jiggas like you are the only ones allowed in!
|
:woot:
Quote:
Originally Posted by Speedfreak
I'll be just up the road in Blaine at Asad's yearly SB party. I'll see if I can make something work to stop by.
|
Do it!
|
|
|
01-03-2015
|
#889
|
|
Pewp Champion
Join Date: Nov 2003
Location: Blaine
Drives: Teh Bean
Posts: 12,309
|
Re: House Projects
0% interest for 36 months too, so that makes it easier. Also lesson learned for me that Magnolia the prices are not fixed. Anyone else ever looking to buy from there. Make sure you try to work a deal. They knocked a butt load off for me.
|
|
|
01-05-2015
|
#890
|
|
immune from paybans
Join Date: Oct 2005
Location: West Des Moines
Drives: poorly
Posts: 4,358
|
Re: House Projects
Quote:
Originally Posted by scheides
I have another wiring project I should post some pics of...
|
Can that thing control how much gas goes to the garage heater? Or just airflow compensations  How about spark timing for the gas?
And wow Brandon, that is a baller ass setup right there. I must be a cheap bastard because I can't even justify spending money on a projector, let alone that insane sound setup. At this point the projector is an afterthought on your setup (price-wise) haha. I would love to see your house some day.
|
|
|
01-05-2015
|
#891
|
|
Pewp Champion
Join Date: Nov 2003
Location: Blaine
Drives: Teh Bean
Posts: 12,309
|
Re: House Projects
Benq W1070 and a mount have been ordered off Amazon, should be here Wednesday.
Construction is starting today, so I'll be littering this thread with pics. Here's some shitty sketches I made that show the general idea of how the room will be setup.
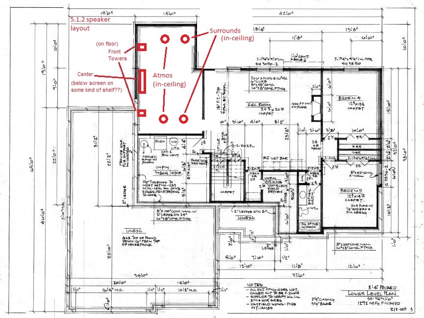
So again, it'll be about a 100" screen (project on painted wall) w/ Benq W1070 projector. Sound will be Dolby Atmos 5.1.2. Sonance in ceiling speakers for surrounds and Atmos (these speakers don't just point down, the point at an angle). Then B&W 693 towers up front with the matching B&W center. Denon 4100 receiver. Then just use our old Samsung Bluray player. For TV we just have uber basic cable, so I have to see if Comcast can give us an HD capable converter box, otherwise I'll have to do like brownman and get an antenna/tuner setup for just OTA stuff.
Furniture we haven't bought yet, so that pic is just our idea. For now it'll just be some misc furniture in there.
|
|
|
01-05-2015
|
#892
|
|
|
Re: House Projects
Excited to see the progress. Id seriously consider not doing that open window to the other room, if I were you. I would keep it a dedicated theater room with sound insulated walls and ceiling so that sound doesnt go all through the house. We did this on my parents basement theater room in their old house, helped quiet things down.
Id also put the projected wall to be the shorter backyard wall, that way you can do stadium seating in that room with 2 couches one in front of the other. But if you keep your existing set up, it will be nice either way.
Also your downstairs is open to the lower level if i remember correctly, so the sound will travel upstairs easily.
Otherwise plan on keeping the volume down low on that serious speaker system, so the baby can sleep. 
Last edited by A//// Guy; 01-05-2015 at 12:36 PM..
|
|
|
01-05-2015
|
#893
|
|
Pewp Champion
Join Date: Nov 2003
Location: Blaine
Drives: Teh Bean
Posts: 12,309
|
Re: House Projects
Thanks for the thoughts. I'll spare all the details, we've been thinking about this since we built the house. After 2 years of consideration of several different setups, including the way you mentioned, this is what we've finally decided on that we like best for us. To each their own!
I agree your way is better if you're going purely for a straight up movie theater.
|
|
|
01-05-2015
|
#894
|
|
aka Goodbye
|
Re: House Projects
Woot! Going to be adding to this thread a bunch in the next year, big projects coming soon! Bigger garage/man cave, separate living rooms, bar, landscaping, etc. More to come.
__________________
2009 Corvette Z51-SOLD
1992 Mitsubishi Eclipse GSX-SOLD
2013 BMW Z4-Current summer hooptie
2017 GMC Yukon-Current winter hooptie
|
|
|
01-05-2015
|
#895
|
|
|
Re: House Projects
Cool, why not get rid of the door all together and make it all open with maybe a post at the left side of the bar if its a load bearing wall?
|
|
|
01-05-2015
|
#896
|
|
Pewp Champion
Join Date: Nov 2003
Location: Blaine
Drives: Teh Bean
Posts: 12,309
|
Re: House Projects
You mean like this sketch that I made, which we highly considered, but decided against?
Like I said, we considered lots of different options, we didn't make this decision over night.
|
|
|
01-05-2015
|
#897
|
Tournaments Won: 3
Join Date: Oct 2003
Location: Maple Grove, MN
Drives: Lancer and Durango
Posts: 7,017
|
Re: House Projects
NO YOU MUST CHANGE YOUR MIND DAMMIT!
__________________
Scientific theories are the most reliable, rigorous, and comprehensive form of scientific knowledge. This is significantly different from the common usage of the word "theory", which implies that something is a conjecture, hypothesis, or guess.
|
|
|
01-05-2015
|
#898
|
|
Pewp Champion
Join Date: Nov 2003
Location: Blaine
Drives: Teh Bean
Posts: 12,309
|
Re: House Projects
Peter forgot to mention since you mentioned soundboard, the ceiling and the wall to the furnace room will have soundboard to prevent it from atleast coming through the floor into the kitchen. The wall with the big hole, not doing any soundboard because well it has a huge hole in it haha.
|
|
|
01-05-2015
|
#899
|
|
|
Re: House Projects
Yea I figured you thought about that, just curious if its a huge added expense or why you wouldnt go with no door if you want open air. Or just frame in the door to be a square with no actual door. Although it would help with a little sound deflection if you keep it.
Not trying to tell you what to do, since you seem a bit defensive, just tossing out ideas lol.
Im surprised you arent doing the work yourself, or at least framing stuff/sheetrocking in yourself and then having someone mud and tape.
Good stuff!
|
|
|
01-05-2015
|
#900
|
|
Pewp Champion
Join Date: Nov 2003
Location: Blaine
Drives: Teh Bean
Posts: 12,309
|
Re: House Projects
I'm not feeling defensive at all, that's internet forums for ya though, say one thing and it comes off another way. Just thought I'd spare all the details of how we came to our decision because it'd be a book, so just sharing the final decision. We did consider that idea of just ditching the door and framing in that area as just a walkway. That is actually still in our playbook. I like no door, she likes door, so we had to compromise. I said OK lets just leave the door then since that's easiest. In 6 months once we've lived with it for awhile, I may end up saying man I'm glad we kept the door, or she might say man I wish we ditched the door. So at that time if we both wished the door was gone, that is exactly what we're going to do, I will just remove the door and finish/paint it as just a walkway. Quick and easy enough that I could get it done quick.
I did want to do the framing and run the electrical all myself actually. But for the last about 4-5 months I've been completely burried with the new job, full time school, and baby. Not making excuses or complaining, just how things are playing out for me at the moment and it's all good. And I still need to finish the flooring in our wine room, also have car stuff I want to get done. So just decided to get some quotes, we ended up really liking this guy, he is really excited about it too, so we just said lets do it!
You doing anything for the Super Bowl? Come on over! Hopefully it'll be done!
|
|
|
Posting Rules
|
You may not post new threads
You may not post replies
You may not post attachments
You may not edit your posts
HTML code is Off
|
|
|
|
|