MitsuStyle MitsuStyle

Go Back   MitsuStyle > The Homefront! > The Parking Lot - On & Off Topic

Reply
 
Thread Tools Display Modes
Old 02-02-2012   #361
Halon
Pewp Champion
 
Halon's Avatar
 

Join Date: Nov 2003
Location: Blaine
Drives: Teh Bean
Posts: 12,309
Send a message via AIM to Halon
Re: House Projects

PM sent Swans man

Sparky - Basically we threw our comments back at the builder (just minor stuff like don't need double doors into master, don't need all that stone on the front of the house, why are they cutting us 80sq/ft short on the garage since we're allowed up to 1200 , etc), so they are making the adjustments. Sometime next week they should have the next rendition done, along with costing. After everything is settled with that, then we sign the contract with them, pull permits, stake the property out, and hopefully start digging around 3-1.
__________________
B-Man - FlexFuel Mafia
1991 TSi AWD E85 - BEP S362, DSMLink V2, Built 2.0L Idle Vid 628hp Graph 541hp Vid 10.93@137 Vid
1992 SC300 E85 - BW 84-75, Vlad Infinity, NA-T, 6spd Idle Vid 709hp Graph 709hp Vid 11.1@131 Vid
2006 Bayliner 195 - Carbed 5.0 Top Speed Test
Halon is offline   Reply With Quote
Old 02-02-2012   #362
Sparky2211
 
Sparky2211's Avatar
 

Join Date: Oct 2006
Location: Cottage Grove
Drives: 2g DSM, 2008 Evo X
Posts: 231
Re: House Projects

Quote:
Originally Posted by Halon View Post
PM sent Swans man

Sparky - Basically we threw our comments back at the builder (just minor stuff like don't need double doors into master, don't need all that stone on the front of the house, why are they cutting us 80sq/ft short on the garage since we're allowed up to 1200 , etc), so they are making the adjustments. Sometime next week they should have the next rendition done, along with costing. After everything is settled with that, then we sign the contract with them, pull permits, stake the property out, and hopefully start digging around 3-1.
Good for you man! Not many people will take the time to plan everything out themselves instead of doing the normal cookie cutter houses. What builder are you going through?
__________________
1997 Eclipse GSX - Project car - 601hp/475tq
2008 Evo X GSR SSS - Daily Driver - 407hp/434tq
Sparky2211 is offline   Reply With Quote
Old 02-02-2012   #363
Halon
Pewp Champion
 
Halon's Avatar
 

Join Date: Nov 2003
Location: Blaine
Drives: Teh Bean
Posts: 12,309
Send a message via AIM to Halon
Re: House Projects

Quote:
Originally Posted by Sparky2211 View Post
Good for you man! Not many people will take the time to plan everything out themselves instead of doing the normal cookie cutter houses. What builder are you going through?
http://mitsustyle.com/forums/showpos...&postcount=345


Quote:
Originally Posted by A//// Guy View Post
Nina and I plan on utilizing a spare bedroom as a north suburb retreat, if thats cool B!
Oh fo sho!!!
__________________
B-Man - FlexFuel Mafia
1991 TSi AWD E85 - BEP S362, DSMLink V2, Built 2.0L Idle Vid 628hp Graph 541hp Vid 10.93@137 Vid
1992 SC300 E85 - BW 84-75, Vlad Infinity, NA-T, 6spd Idle Vid 709hp Graph 709hp Vid 11.1@131 Vid
2006 Bayliner 195 - Carbed 5.0 Top Speed Test
Halon is offline   Reply With Quote
Old 02-02-2012   #364
turbotalon1g
 
turbotalon1g's Avatar
 

Join Date: Mar 2005
Location: Blaine, MN
Drives: '91 Automagic
Posts: 13,908
Send a message via AIM to turbotalon1g
Re: House Projects

IS your wine cellar really gonna be the crunk juice storage?
__________________
Aaron/brownman/big brown.
'91 Automagic.
'02 Z06
Please leave feedback - http://www.dsmtuners.com/forums/itrader.php?u=58309
turbotalon1g is offline   Reply With Quote
Old 02-03-2012   #365
BriK
 
BriK's Avatar
 

Join Date: Jul 2010
Location: Woodbury
Drives: GG IX MR SE
Posts: 183
Re: House Projects

Plans look awesome. Not sure what size place you're in now but, having recently moved into a 5-bed, 3.5 bath, 3500 sq. ft. home myself, it was shocking just how much space it actually is. As you said though, it's great for guests and a growing family.

You may already know this, but I'd say don't skimp on windows and doors. We have dual-paned, double-hung windows with real oak trim, solid core doors throughout, and an insulated garage door. Between all of those things (and spray foam insulation) the house is super quiet and super energy efficient-- our home costs less to heat than my brother-in-law's 2600 sq. ft. home built just two years ago but with lesser windows and doors.
__________________
Brian K.
BriK is offline   Reply With Quote
Old 02-14-2012   #366
Halon
Pewp Champion
 
Halon's Avatar
 

Join Date: Nov 2003
Location: Blaine
Drives: Teh Bean
Posts: 12,309
Send a message via AIM to Halon
Re: House Projects

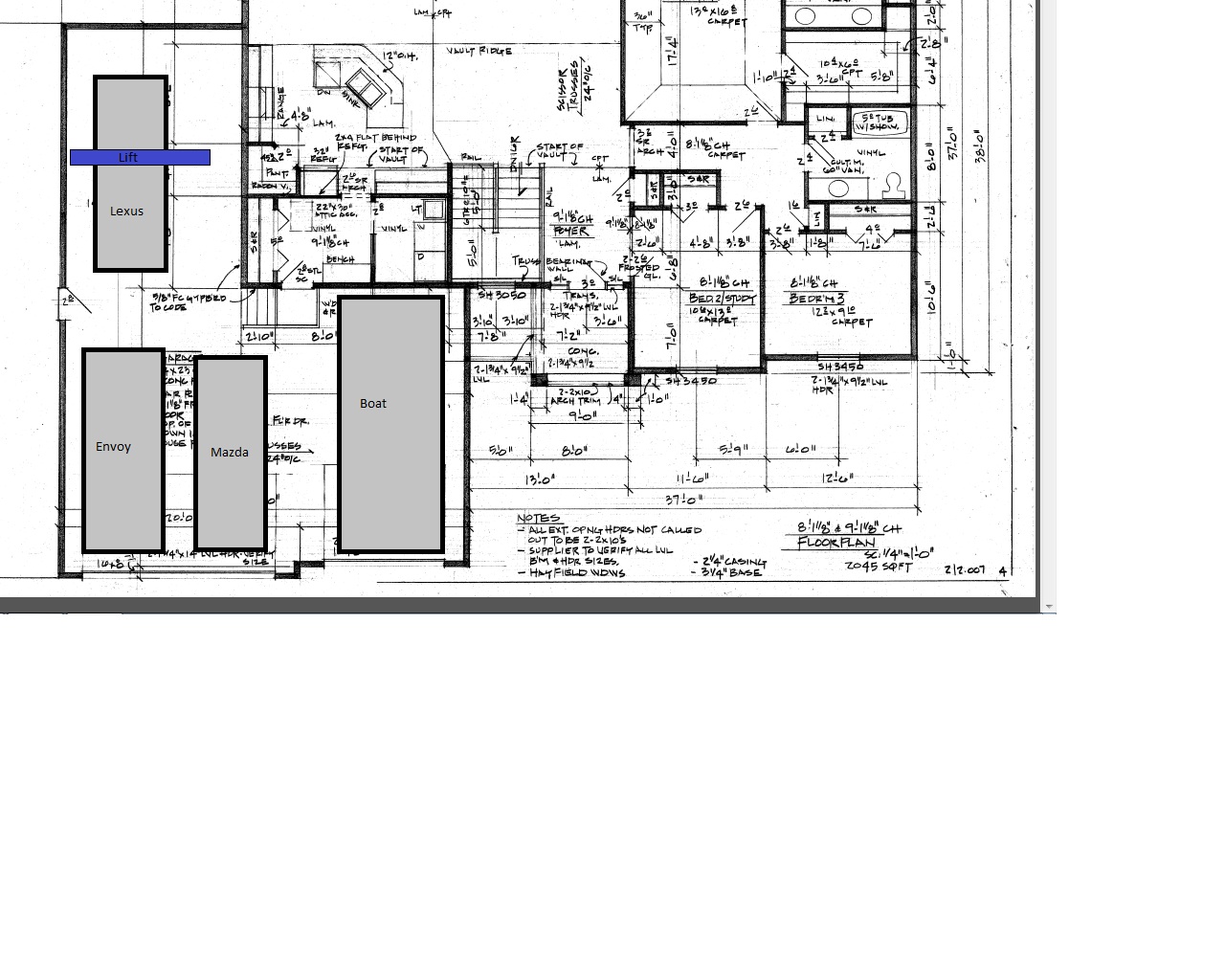
Got the "final" plans today. It's always still open for change, but this should be 99.99% what it will look like.

The theatre room will be unfinished, we'll do that ourselves in the coming years. The wine/cellar area will also be unfinished, but that's ok as all we plan to do is just install a couple light bulbs and shelving and that's about it. Also the wetbar was going to cost around $3500 to build + $300 to rough in, so we are having them leave it just roughed in and we will build our own using pre-made cabinets from Lowe's or whatever for under $1k hopefully.

Attached the final plans in PDF. I also attached a little JPEG showing how I imagine the garage will be utilized, because that's what people really care about
Attached Thumbnails
Click image for larger version

Name:	garage.jpg
Views:	429
Size:	288.3 KB
ID:	12259  
Attached Files
File Type: pdf 1.PDF (677.4 KB, 430 views)
File Type: pdf 2.PDF (166.7 KB, 442 views)
File Type: pdf 3.PDF (462.4 KB, 419 views)
File Type: pdf 4.PDF (442.0 KB, 430 views)
File Type: pdf 5.PDF (279.9 KB, 424 views)
__________________
B-Man - FlexFuel Mafia
1991 TSi AWD E85 - BEP S362, DSMLink V2, Built 2.0L Idle Vid 628hp Graph 541hp Vid 10.93@137 Vid
1992 SC300 E85 - BW 84-75, Vlad Infinity, NA-T, 6spd Idle Vid 709hp Graph 709hp Vid 11.1@131 Vid
2006 Bayliner 195 - Carbed 5.0 Top Speed Test
Halon is offline   Reply With Quote
Old 02-14-2012   #367
Halon
Pewp Champion
 
Halon's Avatar
 

Join Date: Nov 2003
Location: Blaine
Drives: Teh Bean
Posts: 12,309
Send a message via AIM to Halon
Re: House Projects

So now we are moving onto other stuff as well. We need to make an appointment to pick out appliances, lighting, and flooring. We've narrowed down the flooring that will be in the kitchen/dining/foyer.

We also picked out all cabinetry to be Poplar with the Chestwood stain color. All trim will be Natural colored Oak. Here's a pic of the cabinet, trim, and flooring next to each other. In the first pick, you can see the poplar on the left (cabinets) and natural oak on the right (trim and doors). Flooring, we're leaning towards the one on the left, but still considering the darker one as well.




Also we need to pick out exterior colors, and window color. Here's the current colors we're looking at. Left colors are soffet and fascia. Bottom 2 show the white or beige window option. Right colors are the vinyl siding that will be on rear and sides. Front of the house we can pick pretty much anything since it will be painted
Attached Thumbnails
Click image for larger version

Name:	flooring trim 1.jpg
Views:	695
Size:	45.5 KB
ID:	12260   Click image for larger version

Name:	colors1.jpg
Views:	661
Size:	41.5 KB
ID:	12262   Click image for larger version

Name:	flooring trim 2.jpg
Views:	656
Size:	51.6 KB
ID:	12263  

__________________
B-Man - FlexFuel Mafia
1991 TSi AWD E85 - BEP S362, DSMLink V2, Built 2.0L Idle Vid 628hp Graph 541hp Vid 10.93@137 Vid
1992 SC300 E85 - BW 84-75, Vlad Infinity, NA-T, 6spd Idle Vid 709hp Graph 709hp Vid 11.1@131 Vid
2006 Bayliner 195 - Carbed 5.0 Top Speed Test
Halon is offline   Reply With Quote
Old 02-15-2012   #368
niterydr
back in the saddle again
 
niterydr's Avatar
 
3D Racing - Track 2 Champion! 24 Hours Rally Champion! Bloody Pingu Champion! WRX Racing 2 Champion! 3D Pacman white house edition Champion! ATV Winter Challenge Champion!
Tournaments Won: 5

Join Date: Oct 2003
Location: Elkhart Texas
Drives: 2015 Ram Quad Cab Hemi, 1999 FRC Corvette, 93 Stealth Turbo
Posts: 6,411
Send a message via AIM to niterydr
Re: House Projects

Looking good!
niterydr is offline   Reply With Quote
Old 02-15-2012   #369
A//// Guy
 
A//// Guy's Avatar
 
Bloody Seal Bounce Champion!
Join Date: Oct 2003
Location: South Burbs
Drives: Slowly
Posts: 9,870
Re: House Projects

Clean on the outside, cream on the inside!

Bathroom should be done here in a couple weeks, finally go the tub in, but still need to finish hooking up plumbing exit tubes and over flow and then put up the walls and sheetrock, then floor.
A//// Guy is offline   Reply With Quote
Old 02-15-2012   #370
Halon
Pewp Champion
 
Halon's Avatar
 

Join Date: Nov 2003
Location: Blaine
Drives: Teh Bean
Posts: 12,309
Send a message via AIM to Halon
Re: House Projects

Shhweeet, I can't wait to take a dump in your new bano!!
__________________
B-Man - FlexFuel Mafia
1991 TSi AWD E85 - BEP S362, DSMLink V2, Built 2.0L Idle Vid 628hp Graph 541hp Vid 10.93@137 Vid
1992 SC300 E85 - BW 84-75, Vlad Infinity, NA-T, 6spd Idle Vid 709hp Graph 709hp Vid 11.1@131 Vid
2006 Bayliner 195 - Carbed 5.0 Top Speed Test
Halon is offline   Reply With Quote
Old 02-15-2012   #371
BriK
 
BriK's Avatar
 

Join Date: Jul 2010
Location: Woodbury
Drives: GG IX MR SE
Posts: 183
Re: House Projects

I went through many of the same things recently so hopefully I can offer some considerations in attempt to be helpful (I know I welcomed tips when I was shopping).

- darker wood will more easily show dirt and scratches

- after shopping around a lot, we got all of our kitchen appliances at ApplianceSmart. We went with the whole suite of Frigidaire Gallery appliances in stainless steel. For fridge, micro, oven, and dishwasher, we paid as much as we would've for just the fridge and dishwasher somewhere else (ie, basically got the microwave and oven free)-- and that's even after updgrading to a french door refrigerator and double oven. And definitely spring for the french door refrigerator-- it makes a surprising difference.

- check out Steve's Blinds for window coverings-- best prices I've found and good quality
__________________
Brian K.
BriK is offline   Reply With Quote
Old 02-15-2012   #372
turbotalon1g
 
turbotalon1g's Avatar
 

Join Date: Mar 2005
Location: Blaine, MN
Drives: '91 Automagic
Posts: 13,908
Send a message via AIM to turbotalon1g
Re: House Projects

I see a fail in those plans, no NSX parking.

lol, looks good bman.
__________________
Aaron/brownman/big brown.
'91 Automagic.
'02 Z06
Please leave feedback - http://www.dsmtuners.com/forums/itrader.php?u=58309
turbotalon1g is offline   Reply With Quote
Old 02-15-2012   #373
Halon
Pewp Champion
 
Halon's Avatar
 

Join Date: Nov 2003
Location: Blaine
Drives: Teh Bean
Posts: 12,309
Send a message via AIM to Halon
Re: House Projects

We both have bottom freezer fridges in our current homes and really like them, so thats what we will get. They come in regular and French, we will just get whatever we feel ends up being the best deal for us.
I definitely know about appliancesmart, its where I got my current washer and dryer from. Great prices. We will be checking out all of our options.
Thanks for your insight.
__________________
B-Man - FlexFuel Mafia
1991 TSi AWD E85 - BEP S362, DSMLink V2, Built 2.0L Idle Vid 628hp Graph 541hp Vid 10.93@137 Vid
1992 SC300 E85 - BW 84-75, Vlad Infinity, NA-T, 6spd Idle Vid 709hp Graph 709hp Vid 11.1@131 Vid
2006 Bayliner 195 - Carbed 5.0 Top Speed Test
Halon is offline   Reply With Quote
Old 02-15-2012   #374
Halon
Pewp Champion
 
Halon's Avatar
 

Join Date: Nov 2003
Location: Blaine
Drives: Teh Bean
Posts: 12,309
Send a message via AIM to Halon
Re: House Projects

Quote:
Originally Posted by turbotalon1g View Post
I see a fail in those plans, no NSX parking.

lol, looks good bman.
Gotta think in 3D man... under the Lexus
__________________
B-Man - FlexFuel Mafia
1991 TSi AWD E85 - BEP S362, DSMLink V2, Built 2.0L Idle Vid 628hp Graph 541hp Vid 10.93@137 Vid
1992 SC300 E85 - BW 84-75, Vlad Infinity, NA-T, 6spd Idle Vid 709hp Graph 709hp Vid 11.1@131 Vid
2006 Bayliner 195 - Carbed 5.0 Top Speed Test
Halon is offline   Reply With Quote
Old 02-15-2012   #375
turbotalon1g
 
turbotalon1g's Avatar
 

Join Date: Mar 2005
Location: Blaine, MN
Drives: '91 Automagic
Posts: 13,908
Send a message via AIM to turbotalon1g
Re: House Projects

Quote:
Originally Posted by Halon View Post
Gotta think in 3D man... under the Lexus
__________________
Aaron/brownman/big brown.
'91 Automagic.
'02 Z06
Please leave feedback - http://www.dsmtuners.com/forums/itrader.php?u=58309
turbotalon1g is offline   Reply With Quote
Old 02-15-2012   #376
Halon
Pewp Champion
 
Halon's Avatar
 

Join Date: Nov 2003
Location: Blaine
Drives: Teh Bean
Posts: 12,309
Send a message via AIM to Halon
Re: House Projects

Lot is staked!
Attached Thumbnails
Click image for larger version

Name:	Lot Staked.jpg
Views:	428
Size:	228.7 KB
ID:	12264  
__________________
B-Man - FlexFuel Mafia
1991 TSi AWD E85 - BEP S362, DSMLink V2, Built 2.0L Idle Vid 628hp Graph 541hp Vid 10.93@137 Vid
1992 SC300 E85 - BW 84-75, Vlad Infinity, NA-T, 6spd Idle Vid 709hp Graph 709hp Vid 11.1@131 Vid
2006 Bayliner 195 - Carbed 5.0 Top Speed Test
Halon is offline   Reply With Quote
Old 02-15-2012   #377
turbotalon1g
 
turbotalon1g's Avatar
 

Join Date: Mar 2005
Location: Blaine, MN
Drives: '91 Automagic
Posts: 13,908
Send a message via AIM to turbotalon1g
Re: House Projects

I think I know where that is.
__________________
Aaron/brownman/big brown.
'91 Automagic.
'02 Z06
Please leave feedback - http://www.dsmtuners.com/forums/itrader.php?u=58309
turbotalon1g is offline   Reply With Quote
Old 02-17-2012   #378
A//// Guy
 
A//// Guy's Avatar
 
Bloody Seal Bounce Champion!
Join Date: Oct 2003
Location: South Burbs
Drives: Slowly
Posts: 9,870
Re: House Projects

Sweet website to get ideas from! http://www.houzz.com/
A//// Guy is offline   Reply With Quote
Old 02-25-2012   #379
Halon
Pewp Champion
 
Halon's Avatar
 

Join Date: Nov 2003
Location: Blaine
Drives: Teh Bean
Posts: 12,309
Send a message via AIM to Halon
Re: House Projects

Closed on the lot yesterday. It's officially ours. Should start digging next week.

Decided on the Acacia flooring (the lighter one in the pics above). Went to ApplianceSmart and they didn't have anything for us unfortunately. We picked out the house exterior colors. Attached pic points out some of them.

- Rear and sides siding will be called sandalwood (shown in pic).
- Soffit, Facia on the whole house, and the trim on the front of the house will be Shell color (shown in pic).
- Windows will be white (shown in pic).
- Front of the house will be painted in Sherwin Williams Bungalow Beige (not shown).
- Stone of front of house will be Tuscan Villa - Florentine http://www.coronado.com/media/instal..._InstallR1.jpg
Attached Thumbnails
Click image for larger version

Name:	colors2.jpg
Views:	407
Size:	81.3 KB
ID:	12265  
__________________
B-Man - FlexFuel Mafia
1991 TSi AWD E85 - BEP S362, DSMLink V2, Built 2.0L Idle Vid 628hp Graph 541hp Vid 10.93@137 Vid
1992 SC300 E85 - BW 84-75, Vlad Infinity, NA-T, 6spd Idle Vid 709hp Graph 709hp Vid 11.1@131 Vid
2006 Bayliner 195 - Carbed 5.0 Top Speed Test
Halon is offline   Reply With Quote
Old 02-25-2012   #380
Halon
Pewp Champion
 
Halon's Avatar
 

Join Date: Nov 2003
Location: Blaine
Drives: Teh Bean
Posts: 12,309
Send a message via AIM to Halon
Re: House Projects

Quote:
Originally Posted by BriK View Post
I went through many of the same things recently so hopefully I can offer some considerations in attempt to be helpful (I know I welcomed tips when I was shopping).

- darker wood will more easily show dirt and scratches

- after shopping around a lot, we got all of our kitchen appliances at ApplianceSmart. We went with the whole suite of Frigidaire Gallery appliances in stainless steel. For fridge, micro, oven, and dishwasher, we paid as much as we would've for just the fridge and dishwasher somewhere else (ie, basically got the microwave and oven free)-- and that's even after updgrading to a french door refrigerator and double oven. And definitely spring for the french door refrigerator-- it makes a surprising difference.

- check out Steve's Blinds for window coverings-- best prices I've found and good quality
You said you got Frigidaire Gallery appliances? That's pretty much exactly what we are looking for. They had a decent deal but we didn't want the side by side freezer/fridge. We want a bottom door style fridge. The one we want is more $$, but they wouldn't let us upgrade the fridge to a different one for that deal. So we're going to look elsewhere.
__________________
B-Man - FlexFuel Mafia
1991 TSi AWD E85 - BEP S362, DSMLink V2, Built 2.0L Idle Vid 628hp Graph 541hp Vid 10.93@137 Vid
1992 SC300 E85 - BW 84-75, Vlad Infinity, NA-T, 6spd Idle Vid 709hp Graph 709hp Vid 11.1@131 Vid
2006 Bayliner 195 - Carbed 5.0 Top Speed Test
Halon is offline   Reply With Quote
Reply

Thread Tools
Display Modes

Posting Rules
You may not post new threads
You may not post replies
You may not post attachments
You may not edit your posts

BB code is On
Smilies are On
[IMG] code is On
HTML code is Off



All times are GMT -5. The time now is 04:20 PM.


Powered by vBulletin® Version 3.8.4
Copyright ©2000 - 2026, Jelsoft Enterprises Ltd.