MitsuStyle MitsuStyle

Go Back   MitsuStyle > Tech > Tuning/Electrical

Reply
 
Thread Tools Display Modes
Old 07-12-2006   #1
Swifty1638
Unsure resident asshole
 
Swifty1638's Avatar
 

Join Date: Mar 2005
Location: MN
Drives: '92 Eagle TalonTSI w/many mods
Posts: 3,696
Send a message via AIM to Swifty1638
dumb question but..

Which wire from the key cylinder is the wire that give's power to the starter? When you turn the key to run, you get electricity to the radio, a/c etc. But, which wire becomes hot when you turn the key to start? btw, this is a 92 talon.

-A. Swift
__________________
Black 1GB Mafia #1
744AWHP/526TQ-Shootout mode
639.6AWHP/452TQ-DB's dyno

I wanna go fast.
Swifty1638 is offline   Reply With Quote
Old 07-12-2006   #2
unreal808
Mr. Me Too
 
unreal808's Avatar
 

Join Date: Oct 2003
Location: Albertville, MN
Drives: Suzuki GSXR
Posts: 999
Re: dumb question but..

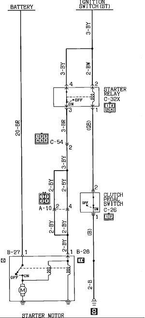
Power from the ignition switch color is ( B - Y ) that wire goes to the starter relay, from the relay is becomes ( B - R ) on its way to the starter.
Attached Images
File Type: gif talon gg.gif (15.9 KB, 325 views)
__________________
Take her to the limit!

Last edited by unreal808; 07-12-2006 at 08:14 PM..
unreal808 is offline   Reply With Quote
Old 07-12-2006   #3
unreal808
Mr. Me Too
 
unreal808's Avatar
 

Join Date: Oct 2003
Location: Albertville, MN
Drives: Suzuki GSXR
Posts: 999
Re: dumb question but..

ALLDATA info
Attached Images
File Type: gif talonff.gif (10.9 KB, 323 views)
__________________
Take her to the limit!
unreal808 is offline   Reply With Quote
Old 07-12-2006   #4
Swifty1638
Unsure resident asshole
 
Swifty1638's Avatar
 

Join Date: Mar 2005
Location: MN
Drives: '92 Eagle TalonTSI w/many mods
Posts: 3,696
Send a message via AIM to Swifty1638
Re: dumb question but..

So, I tap into the black/red wire to place a switch, further under the dash?

-A. Swift
__________________
Black 1GB Mafia #1
744AWHP/526TQ-Shootout mode
639.6AWHP/452TQ-DB's dyno

I wanna go fast.
Swifty1638 is offline   Reply With Quote
Old 07-12-2006   #5
unreal808
Mr. Me Too
 
unreal808's Avatar
 

Join Date: Oct 2003
Location: Albertville, MN
Drives: Suzuki GSXR
Posts: 999
Re: dumb question but..

Its up to you , but it looks like you could go to the relay and do the splice.
Attached Images
File Type: gif talonss.gif (7.5 KB, 299 views)
File Type: gif talons.gif (7.5 KB, 306 views)
__________________
Take her to the limit!
unreal808 is offline   Reply With Quote
Old 07-12-2006   #6
Swifty1638
Unsure resident asshole
 
Swifty1638's Avatar
 

Join Date: Mar 2005
Location: MN
Drives: '92 Eagle TalonTSI w/many mods
Posts: 3,696
Send a message via AIM to Swifty1638
Re: dumb question but..

which wire from the relay do I tap into then? The black and red one that goes to the starter?

-A. Swift
__________________
Black 1GB Mafia #1
744AWHP/526TQ-Shootout mode
639.6AWHP/452TQ-DB's dyno

I wanna go fast.
Swifty1638 is offline   Reply With Quote
Old 07-12-2006   #7
unreal808
Mr. Me Too
 
unreal808's Avatar
 

Join Date: Oct 2003
Location: Albertville, MN
Drives: Suzuki GSXR
Posts: 999
Re: dumb question but..

I guess? I’m not sure what you are trying to achieve. If you apply 12 volts to the B/R wire the starter will engage, If you try to run something else off that wire, it will only get power when the starter gets power.
__________________
Take her to the limit!
unreal808 is offline   Reply With Quote
Old 07-13-2006   #8
Swifty1638
Unsure resident asshole
 
Swifty1638's Avatar
 

Join Date: Mar 2005
Location: MN
Drives: '92 Eagle TalonTSI w/many mods
Posts: 3,696
Send a message via AIM to Swifty1638
Re: dumb question but..

So, so far.

the ignition cylinder I have has a black/yellow wire, and a yellow/red wire. Those are for the little light surrounding the key hole.

Then, we have a black/red wire, a blue/red wire, a blue wire, a black wire, and a black/white wire. I have tried cutting the black/red wire, the black/white wire but both still can crank the starter. I don't want to guess anymore. I wish it know which wire will not allow the key to turn on the starter, but that I can rather do a push start button (got it for free at honda-don't say a word about rice). What wire am I missing here?

-A. Swift
__________________
Black 1GB Mafia #1
744AWHP/526TQ-Shootout mode
639.6AWHP/452TQ-DB's dyno

I wanna go fast.
Swifty1638 is offline   Reply With Quote
Old 07-14-2006   #9
Swifty1638
Unsure resident asshole
 
Swifty1638's Avatar
 

Join Date: Mar 2005
Location: MN
Drives: '92 Eagle TalonTSI w/many mods
Posts: 3,696
Send a message via AIM to Swifty1638
Re: dumb question but..

nvm, i found a writeup online. i combined both instructions, drew out my own wiring diagram, and came to the conclusion that no one is right. I tested shit, and figured it out. sorry for wasting time. mods delete this thread!

-A. Swift
__________________
Black 1GB Mafia #1
744AWHP/526TQ-Shootout mode
639.6AWHP/452TQ-DB's dyno

I wanna go fast.
Swifty1638 is offline   Reply With Quote
Reply


Posting Rules
You may not post new threads
You may not post replies
You may not post attachments
You may not edit your posts

BB code is On
Smilies are On
[IMG] code is On
HTML code is Off



All times are GMT -5. The time now is 07:01 PM.


Powered by vBulletin® Version 3.8.4
Copyright ©2000 - 2026, Jelsoft Enterprises Ltd.